
Panel kontrol 3 phase erat hubungannya dengan motor listrik yang merupakan mesin listrik yang banyak sekali digunakan sekarang ini,karena banyaknya manfaat dari motor listrik untuk mempermudah pekerjaan sehingga motor listrik tersebut harus di jaga dengan baik agar tetap dapat berkerja secara kontinyu,disinilah panel kontrol 3 phase mengambil peranan yang penting. Contoh gangguan yang bisa terjadi pada motor listrik misalnya arus listrik yang diserapnya terlalau besar melebihi kemampuan maksimumnya dikarenakan pembebanan mekanik yang berat sehingga dapat mempengaruhi meningkatnya arus listrik,jika masalahnya seperti ini maka biasanya motor listrik pemasangannya dilengkapi dengan Thermal Overload Relay pada panel kontrol 3 phase. pada panel kontrol 3 phase,fungsi Thermal overload relay adalah mendeteksi panas berlebih akibat arus yang mengalir pada Bimetal Thermal yang di pasang seri terhadap motor listrik.
Gangguan lain yang bisa terjadi dan dapat merusak motor listrik 3 fasa adalah adanya suplay dari sumber listrik yang salah satu dari ketiga fasa ada yang hilang atau terputus,dengan demikian suplay listrik yang masuk ke motor listrik 3 fasa hanya 1 atau 2 fasa saja sehingga dengan daya motor yang tetap dan fasa berkurang maka arus listrik akan meningkat sehingga dalam waktu yang lama kumparan motor listrik akan panas dan terbakar.
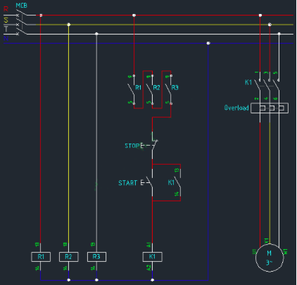
Pada kesempatan kali ini saya akan berbagi untuk sobat tentang rangkaian proteksi tegangan panel kontrol 3 phase untuk motor listrik 3 fasa,mudah mudahan dapat memberikan manfaat bagi sobat yang membutuhkan.Berikut gambar rangkaian proteksi panel motor listrik 3 fasa.

Gambar tersebut dilengkapi dengan 3 buah relay AC 220 volt yang di suplay dari masing masing fasa yang berbeda dari sistim 3 fasa.Ketiga relay akan bekerja apabila ketiga fasa tetap terhubung ke masing masing koil R1, R2 dan R3.Yang bisa di manfaatkan dari ketiga relay tersebut adalah kontak NO dari masing masing relay tersebut yang ketiga tiganya di pasang seri terhadap rangkaian kontrol motor listrik 3 fasa.
Kontak NO dari ketiga Relay akan menutup/terhubung apabila suplay listrik 3 fasa tetap terjaga. Namun jika salah satu saja dari sistem 3 fasa terputus maka rangkaian kontrol tidak dapat berfungsi, dengan demikian arus listrik tidak nyampai ke kontaktor K1 sehingga motor motor berhenti sendiri dan tetap aman. Demikian pembahasan tentang rangkaian proteksi tegangan motor listrik 3 fasa semoga bermanfaat.